• Al ruim 40 jaar thuis in de Hoeksche Waard
  • Lokale expertise
  • Uniek netwerk van kopers, verkopers en collega-makelaars
  • Twee kantoren in de Hoeksche Waard
  • Realistisch en eerlijk advies
  • Maatschappelijk betrokken door lokaal actief te zijn

Strijen

Bernhardstraat 29

€ 425.000 K.K.
Onder bod

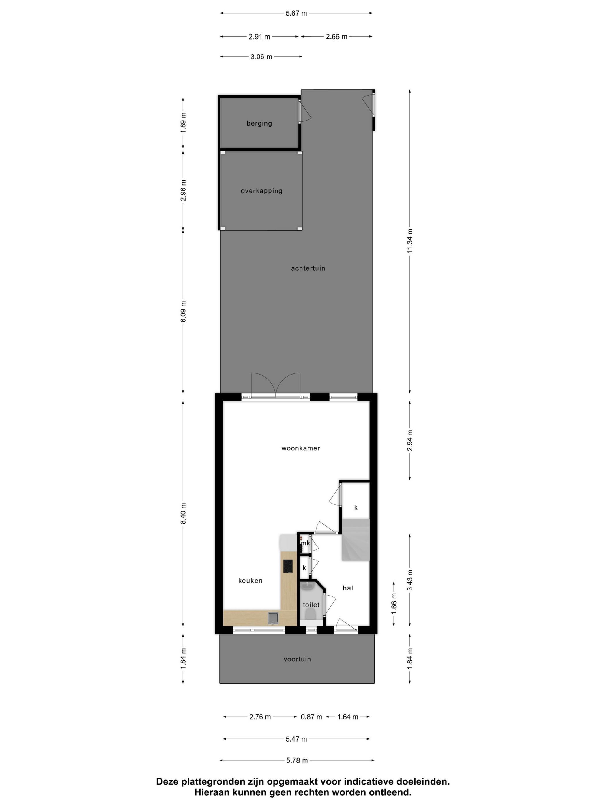
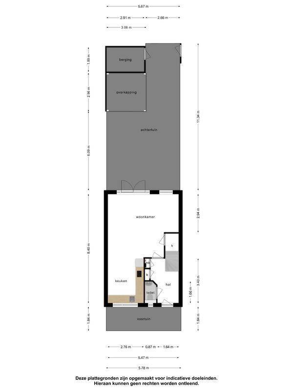
118 m²

4 Slaapkamers

Eengezinswoning

Energielabel A

Geïnteresseerd in Bernhardstraat 29?

Vul onderstaand formulier in of plan online een bezichtiging