• Al ruim 40 jaar thuis in de Hoeksche Waard
  • Lokale expertise
  • Uniek netwerk van kopers, verkopers en collega-makelaars
  • Twee kantoren in de Hoeksche Waard
  • Realistisch en eerlijk advies
  • Maatschappelijk betrokken door lokaal actief te zijn

Strijen

Binnensingel 73

€ 325.000 K.K.
Verkocht

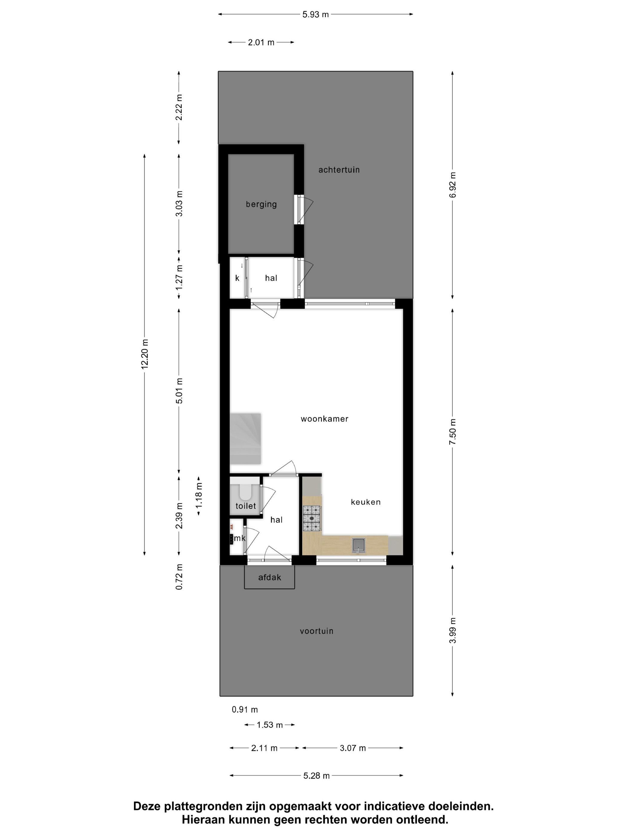
102 m²

4 Slaapkamers

Eengezinswoning

Energielabel B