• Al ruim 40 jaar thuis in de Hoeksche Waard
  • Lokale expertise
  • Uniek netwerk van kopers, verkopers en collega-makelaars
  • Twee kantoren in de Hoeksche Waard
  • Realistisch en eerlijk advies
  • Maatschappelijk betrokken door lokaal actief te zijn

Maasdam

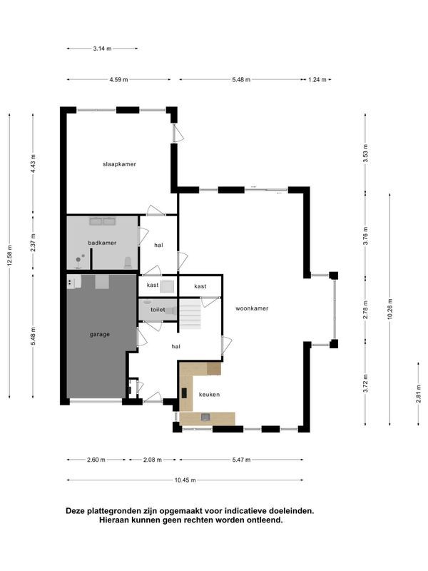
Hof van Weede 17

€ 769.500 K.K.
Verkocht

161 m²

3 Slaapkamers

Eengezinswoning

Energielabel A