• Al ruim 40 jaar thuis in de Hoeksche Waard
  • Lokale expertise
  • Uniek netwerk van kopers, verkopers en collega-makelaars
  • Twee kantoren in de Hoeksche Waard
  • Realistisch en eerlijk advies
  • Maatschappelijk betrokken door lokaal actief te zijn

Oud-Beijerland

Ooststraat 36

€ 255.000 K.K.
Verkocht

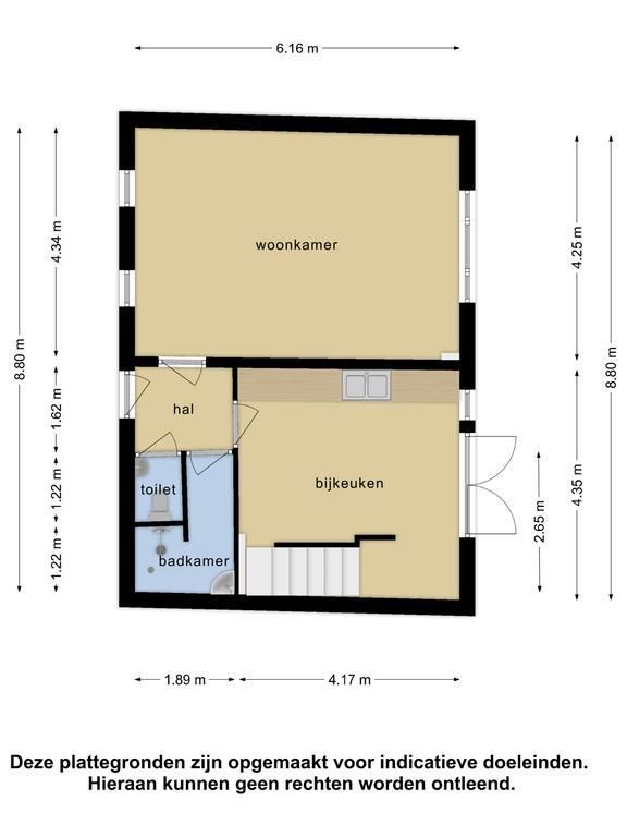
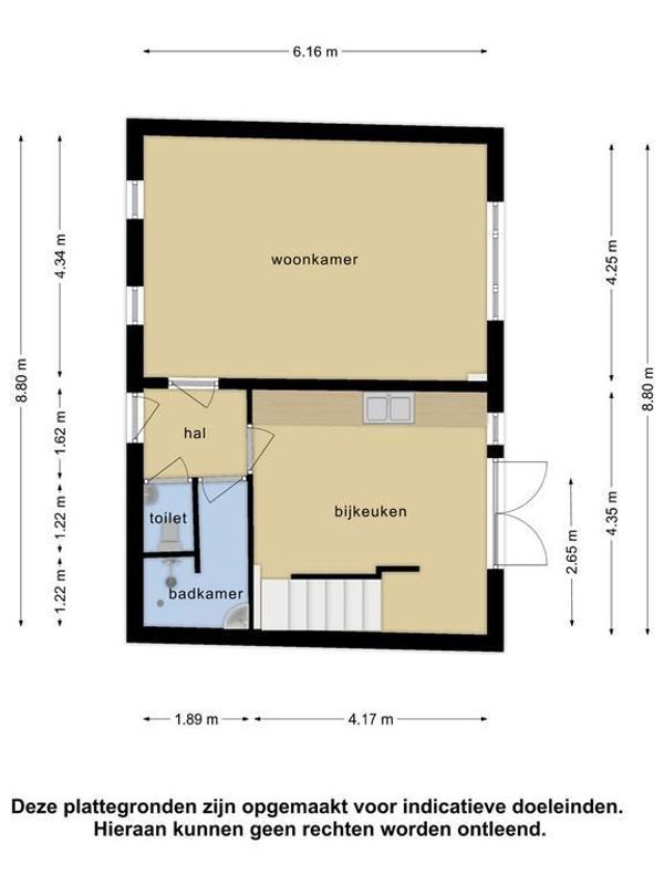
130 m²

3 Slaapkamers

Eengezinswoning

Energielabel E